Реализованный проект: Монолитная лестница на второй этаж, частный дом, д. Горышкино
Компания «ART-подъём» завершила строительство монолитной бетонной лестницы в Одинцовском районе Московской области. Заказчиком выступил владелец загородного дома. В марте 2025 года наши специалисты приступили к работам по возведению межэтажной конструкции в деревне Горышкино. На текущий момент объект полностью сдан, заказчик подтвердил высокое качество исполнения и соблюдение согласованных сроков.
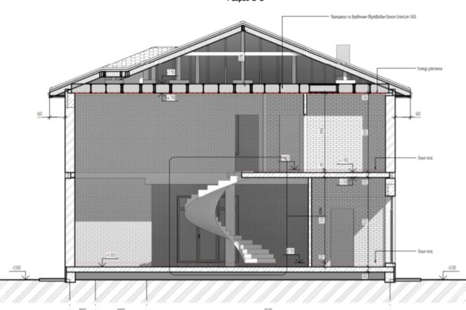
📐 Технические характеристики объекта
| Параметр | Значение |
|---|---|
| Тип конструкции | Монолитная бетонная лестница на второй этаж |
| Локация | д. Горышкино, Одинцовский район, Московская область |
| Опалубка (основание) | Фанера 6 мм |
| Опалубка (ступени) | Фанера 18 мм |
| Расходные материалы | Бруски 50×100×6000 мм |
| Армирование | Арматура А-500: Ø12 мм, Ø16 мм, Ø8 мм |
| Усиление | Балка из арматуры Ø16 мм под бетонное основание |
| Марка бетона | В30 на гранитном заполнителе |
🏗️ Особенности технологии монтажа
При возведении монолитной лестницы в Горышкино мы применили проверенную технологию, обеспечивающую максимальную надёжность конструкции:
- Многослойная опалубка: использование фанеры разной толщины (6 мм для основания, 18 мм для ступеней) позволяет добиться идеальной геометрии и гладкой поверхности;
- Усиленное армирование: каркас из арматуры А-500 различных диаметров (8–16 мм) равномерно распределяет нагрузку и предотвращает появление трещин;
- Дополнительная балка: закладка усиленной балки из 16-й арматуры под бетонное основание повышает несущую способность всей конструкции;
- Высокомарочный бетон: применение бетона В30 на гранитном заполнителе гарантирует морозостойкость, влагостойкость и долговечность — критически важно для климата Московской области.
Подробнее о технологии изготовления читайте в разделе монолитные лестницы на бетонном каркасе.
✅ Преимущества монолитных бетонных лестниц
Монолитные бетонные лестницы в Одинцовском районе — это надёжное, пожаробезопасное и эстетичное решение для частных домов. Мы изготавливаем лестницы под ключ: от проектирования до финишной отделки. В зависимости от пожеланий клиента, конструкция может быть:
- Г-образной — с поворотом на 90°, компактное решение;
- П-образной — с поворотом на 180°, идеальна для просторных проёмов;
- Винтовой — элегантный вариант для экономии пространства;
- Прямой одномаршевой — классика с максимальной простотой монтажа.
Ключевые преимущества бетонных лестниц:
- ✅ Срок службы 50+ лет без капитального ремонта;
- ✅ Не горит, не гниёт, не боится влаги;
- ✅ Выдерживает высокие нагрузки (дети, мебель, переезды);
- ✅ Любая отделка: дерево, камень, плитка, краска;
- ✅ Не скрипит и не шатается со временем.
📋 Этапы работ в проекте «Горышкино»
- Выезд инженера на объект, замеры и консультация;
- Разработка проекта с учётом архитектуры дома;
- Изготовление опалубки из фанеры и брусков;
- Монтаж арматурного каркаса с усиленной балкой;
- Заливка бетона В30 с виброуплотнением;
- Уход за бетоном (увлажнение, контроль набора прочности 28 дней);
- Демонтаж опалубки, шлифовка, подготовка к отделке;
- Сдача объекта заказчику «под ключ».
Посмотрите другие реализованные проекты в разделе фотогалерея.
Стоимость и сроки
Цена на монолитную лестницу зависит от типа конструкции, марки бетона, сложности армирования и отделки. Для расчёта стоимости вашего проекта перейдите на страницу цена на бетонную лестницу.
Ориентировочные сроки изготовления:
- Проектирование: 3–5 дней;
- Монтаж опалубки и армирование: 5–7 дней;
- Заливка и набор прочности: 28 дней;
- Отделка (по желанию): 3–5 дней.
География работ
Компания «ART-подъём» работает по всей Москве и Московской области. Мы реализуем проекты в Одинцово, Горышкино, Звенигороде, Красногорске, Истре, Рублёвке, Жуковке, Горки-2 и других населённых пунктах Подмосковья.
Нужна консультация? Свяжитесь с нами через раздел контакты.






